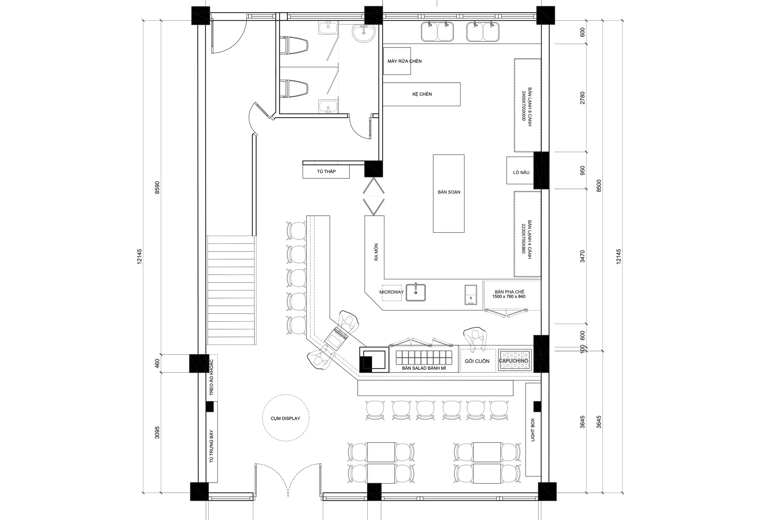
Meme Restaurant Location: RotterdamDesign by: Tram Le View fullsize View fullsize View fullsize View fullsize View fullsize